
解体工事が完了。
早速、地盤調査をするも、杭が必要とのこと。
以前は、鉄筋コンクリート2階建てが建っていて、今回の計画は木造平屋。
多分、杭は必要ないかと考えていたが、以外にも地盤補強の判定が出てしまった。
工務店さんに、地盤改良の段取りをしていただき、再度配置確認へ。
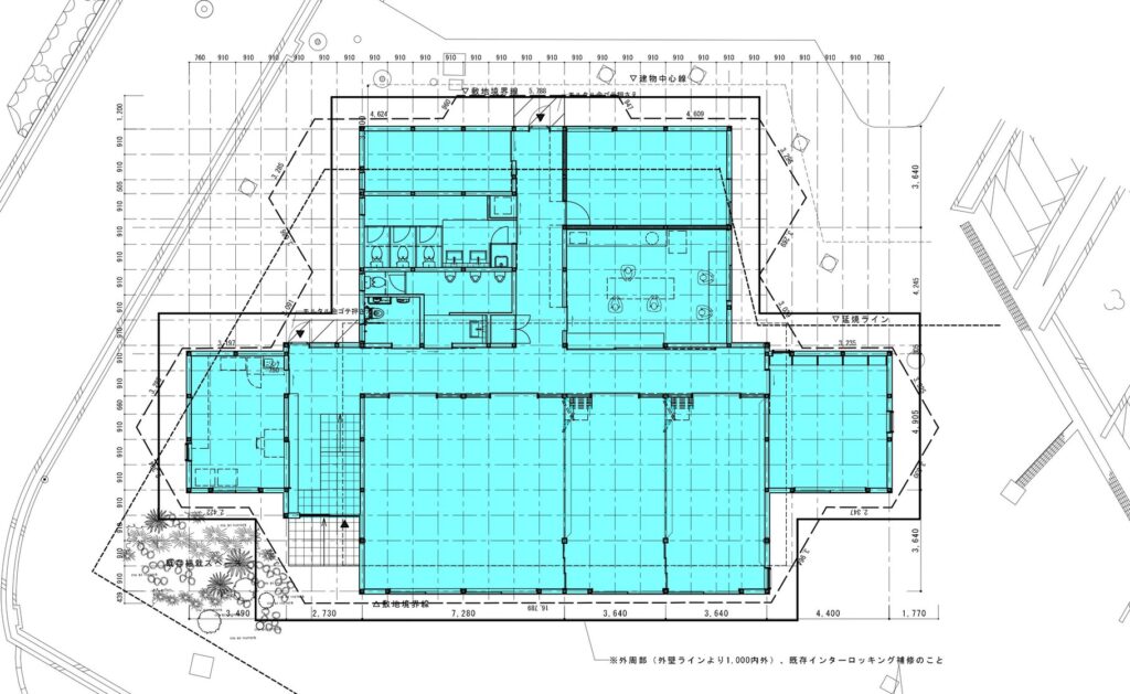
杭工事がある時は、この時点での配置確認が最重要確認項目となる。

配置図面、地積測量図面を見ながら、一つ一つの敷地境界、境界ポイントを確認する。

特に、この建物では、配置確認を慎重に行う。
というのも、敷地境界ラインと、建物の配置が、いっぱいの部分があるからです。
以前の地域会館は、鉄筋コンクリート2階建てで、こちらも敷地いっぱいに建てられている部分がありました。

建物の外形のラインが、ほぼ敷地境界いっぱい。
今回、計画にあたり、工事予算的にも2階建ては不可能で、平屋にして、いかに使ってゆくかが大きなポイントとなっていました。

既存の外形のラインとはほぼ同じ形で、それぞれの居室を配し計画してきました。
基準法的には、建蔽率100%。いかにその建蔽率を有効に使えるか、ここがポイントだったのです。
慎重に、慎重に、境界ラインを確認し、無事配置確認を終えました。
(内心、かなりほっとしました。)

大阪府 堺市 泉北ニュータウン の 設計事務所 中古ストック を活用した 木の家 マンション 自然素材 耐震 断熱 リノベーション 西紋一級建築士事務所